1. TABILMO
  2. 関東
  3. 千葉
  4. 九十九里・銚子・一宮
  5. グランピング
  6. 【イノセンスリゾート】ドックコテージ(A1)
室内イメージ
ドックコテージ入口
共有シャワールーム(別棟・時間予約制)
室内トイレ完備
ワンちゃん用アメニティ
  • 大人2名まで
画像を一覧で見る

【イノセンスリゾート】ドックコテージ(A1)

グランピング
  1. 千葉
  2. 九十九里・銚子・一宮
18,620円
2名1泊の料金(税込)
千葉県山武市蓮沼ハ4159番イノセンスリゾート in千葉レゾール

アクセス方法

車でお越しのお客様:松尾横芝ICより18分
電車でお越しのお客様:総武線松尾駅よりタクシーで13分

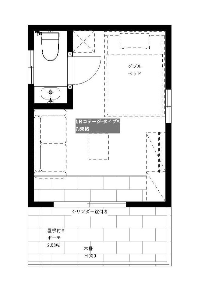
間取り図

建物13.04㎡ 専用テラス4.35㎡ 専用庭≒20㎡

基本情報

敷地平米数 42平米

屋内平米数 13平米

最小宿泊人数 1名

最大宿泊人数 2名

駐車場 1台

1台駐車可能

ベッド 1台

ダブルベット1台

室内完全禁煙
敷地内は喫煙可能

近くの施設

*蓮沼海浜公園 徒歩6分
*蓮沼ウォーターガーデン 徒歩14分
*オライはすぬま(道の駅) 徒歩21分
*ドックカフェ(サシローカフェ) 徒歩12分

おすすめ利用シーン

リーズナブルに気軽に愛犬やペットと泊まりたい方におススメ。お部屋はコンパクトですが、その分、費用を抑えてペット同泊を気軽に楽しめます。

設備

室内トイレ、洗面所、冷蔵庫、エアコン、電気ケトル、TV、ハンガーラック
※愛犬やペットとのご滞在が可能です。
※宿泊者専用男女別の共用シャワールームを別で設けております(各洗面・シャワー完備)
※お庭にわんちゃん用脚洗いシャワーを設置しております。

部屋の特徴

ペットと一緒にリゾートステイ 愛犬と泊まれるお部屋
愛犬との滞在が可能な「足洗い場付きの専用庭」付きの客室をご用意しております。
お部屋にはわんちゃん用アメニティも充実。

アメニティ

ハンドソープ、バスタオル、フェイスタオル、シャンプー、コンディショナー、ボディソープ、ドライヤー、化粧水、乳液、歯ブラシ

※部屋着は各自お持込みをお願いいたします。

施設の概要

ペットと一緒にリゾートステイ 愛犬と泊まれるお部屋
愛犬との滞在が可能な「足洗い場付きの専用庭」付きの客室をご用意しております。
お部屋にはわんちゃん用アメニティも充実。
また、近隣徒歩圏の海沿いにはドッグラン併設のカフェが有ります。その店内ではワンちゃん同伴可能のドッグエリアがあり、リードフリーで利用できますし、さらに、天然芝のドッグランが併設しております。
海を感じながら、美味しいものを食べて、愛犬と存分におでかけを楽しめます♪
大切な愛犬とかけがえのないリゾートステイをお楽しみください。

チェックイン・チェックアウト

チェックイン開始時間 15:00

最終チェックイン時間 22:00

チェックアウト最終時間 10:00

喫煙について

分煙

室内完全禁煙
敷地内は喫煙可能

オプション

BBQセット

6,000円/名

グランピングBBQ 6,000円/1名(12歳以下のお子様は半額のお子様用セットのご用意がございます。)
厳選された地元食材“美食”を堪能。地元千葉県のご当地食材をふんだんに使用したここでしか味わえない贅沢なこだわりグランピングBBQメニューをご提供いたします。

牛肩ロース
鶏モモステーキ
千葉県産ご当地食材(ソーセージ、焼き野菜5種)
きのこ
ホタテ(事前希望によりハマグリに変更可)
有頭えび
ご飯
※敷地内キッチンカウンターにて宿泊プラン内以外の飲食類もご購入いただけます。
※旬の食材を使用しておりますため、内容が変わることがございます。
※11月~3月の冬季に関しましては、BBQ時に薪ストーブor焚き火台をご用意しております。
また、ブランケットのご用意もございますので、お気軽にお申し付けください。
※薪ストーブor焚き火台にて利用可能な食材込みのお鍋のセットオプション有り

[注文受付締切]

チェックイン日の1日前の21時まで

[キャンセルについて]

キャンセル受付締切はチェックイン日の1日前の23時まで

この日時を過ぎると、キャンセル料として100%の料金が発生します。

締切前であれば、キャンセルは可能で、料金は発生しません。

BBQコンロ貸し出しセット(2~3名用)卓上用

3,300円/泊

BBQコンロの貸し出しセットになります。食材・飲み物は持込自由です。
コンロ貸し出しに含まれる内容は下記になります。

BBQコンロ(炭付き)※炭火は火を起こしてからお持ち致します。
30cmトング
紙皿 2枚×人数
割り箸 人数
おしぼり 人数
はさみ
ゴミ袋 2枚(生ゴミとその他)
包丁
まな板
ピーラー
キッチンペーパー
※調味料は含まれません。少量を現地で購入も可能

[注文受付締切]

チェックイン日の0日前の20時まで

[キャンセルについて]

キャンセル受付締切はチェックイン日の0日前の20時まで

この日時を過ぎると、キャンセル料として100%の料金が発生します。

締切前であれば、キャンセルは可能で、料金は発生しません。

BBQコンロ貸し出しセット(3~4名様用)

4,400円/泊

BBQコンロの貸し出しセットになります。食材・飲み物は持込自由です。
※焼きそばなどに使えるアルミプレートは現地で販売しております。
※鍋の貸し出しオプション有り

コンロ貸し出しに含まれる内容は下記になります。
BBQコンロ(炭付き)※炭火は火を起こしてからお持ち致します。
30cmトング
紙皿 2枚×人数
割り箸 人数
おしぼり 人数
はさみ
ゴミ袋 2枚(生ゴミとその他)
包丁
まな板
ピーラー
キッチンペーパー
※調味料は含まれません。少量を現地で購入も可能

[注文受付締切]

チェックイン日の0日前の20時まで

[キャンセルについて]

キャンセル受付締切はチェックイン日の0日前の20時まで

この日時を過ぎると、キャンセル料として100%の料金が発生します。

締切前であれば、キャンセルは可能で、料金は発生しません。

BBQコンロ貸し出しセット(4~6名様用)卓上用 ※極厚BBQ鉄板オプション有り

5,500円/泊

BBQコンロの貸し出しセットになります。食材・飲み物は持込自由です。
コンロ貸し出しに含まれる内容は下記になります。
※極厚BBQ鉄板は希望が有った場合のみお付け致します。+1,100円となります。

BBQコンロ(炭付き)※炭火は火を起こしてからお持ち致します。
30cmトング
紙皿 2枚×人数
割り箸 人数
おしぼり 人数
はさみ
ゴミ袋 2枚(生ゴミとその他)
包丁
まな板
ピーラー
キッチンペーパー
※調味料は含まれません。少量を現地で購入も可能

[注文受付締切]

チェックイン日の0日前の20時まで

[キャンセルについて]

キャンセル受付締切はチェックイン日の0日前の20時まで

この日時を過ぎると、キャンセル料として100%の料金が発生します。

締切前であれば、キャンセルは可能で、料金は発生しません。

朝食

1,500円/名

爽やかな朝を迎える、グランピング感あふれる朝食をご用意しております。
※アメリカンブレックファースト
※旬の食材を使用しておりますため、内容が変わることがございます。
※ドリンク付き
※12歳以下のお子様用は表示料金の半額

[注文受付締切]

チェックイン日の0日前の21時まで

[キャンセルについて]

キャンセル受付締切はチェックイン日の0日前の21時まで

この日時を過ぎると、キャンセル料として100%の料金が発生します。

締切前であれば、キャンセルは可能で、料金は発生しません。

貸切パーティールーム

5,500円/名×泊

おしゃれで広々としたパーティールームを貸切でご利用いただけます。
デザイナーズスタイルの一軒家、LDK(27.5帖)とオープンデッキのアウトドアリビング(13.5帖)を貸し切りでご利用頂けます。
備え付けのデコレーションキッチン(シンク・ガスコンロ・冷蔵庫・調理器具利用可)、音響システム、プロジェクター、ボードゲームなど、全て費用内で利用可能となります。

ご利用可能時間:15:00~23:00

[注文受付締切]

チェックイン日の0日前の18時まで

[キャンセルについて]

キャンセル受付締切はチェックイン日の0日前の18時まで

この日時を過ぎると、キャンセル料として100%の料金が発生します。

締切前であれば、キャンセルは可能で、料金は発生しません。

貸切バスルーム コテージプラン

2,000円/泊

ラグジュアリーバスルーム
貸切でご利用いただけるバスルームを ご用意しております。
癒しのひとときをお過ごしください。
デザイナーズスタイルのバスルームを贅沢に貸切でご利用いただけます。 おしゃれな内装からつくりだされるラグジュアリーな空間でココロもカラダもリフレッシュ。 ぜひこの機会に非日常的なバスタイムをご体験ください。
※1組様60分のご利用となります。
※定員大人2名様までとさせていただきます。
(小学生未満のお子様は0.5名分としての計上でご利用可能です)

※ご予約状況により、ご希望に添えない場合がございます。
※バスソルト各種ご用意しておりますので、お好きな香りを選んで浴槽に入れてからお入りください。(オプション:+500円)

【ご注意】
※食べ物の持込みはご遠慮ください。飲み物はお酒以外、持ち込み可
※バスタオル、浴着はお部屋からお持ち頂くようお願い致します。

[注文受付締切]

チェックイン日の0日前の21時まで

[キャンセルについて]

キャンセル受付締切はチェックイン日の0日前の21時まで

この日時を過ぎると、キャンセル料として100%の料金が発生します。

締切前であれば、キャンセルは可能で、料金は発生しません。

テントサウナガーデン ※4名様1セット(2セット以上ご注文可能)

6,000円

透き通った空と満点の星空を見上げ、海風を感じながら”ととのう”極上のアウトドアサウナ体験
日本一の星空と四季折々の自然の中で楽しむ癒しのアウトドア体験として「テントサウナ」をご利用頂けます。
セルフロウリュが楽しめるテントサウナでは、リラックス効果をもたらすロウリュ用のアロマ水もご用意。
美しい星空と自然の音に包まれて心身ともにリフレッシュするアウトドアサウナ体験を是非お試しください。

【テントサウナガーデン設備】
・中央奥に見えるのがテントサウナ(4人用)
・左テントが着替え用テント
・右テントが簡易シャワー用テント(木製小屋に改修済)
・右奥に水風呂
・ととのいスペースに、焚き火台(冬季限定)とインフィニティチエア×2脚、ヒーリングチエア×2脚

【ご利用案内】
期間:通年
料⾦:1 セット(90 分)貸切利用料⾦6,000 円(当サイト限定価格)
利⽤⼈数:最⼤4名様
セット内容:タオルセット・サンダル(⼈数分)・ミネラルウォーター・(冬季は焚き火で温めて飲めるスープ付き)
貸し出し品:サウナポンチョ 500円/1 着
※テントサウナのご利⽤時は濡れたり、煙の匂いがついてもいいT シャツやタンクトップ、短パン、⽔着など⾐服を着⽤願います。
※ご予約時間枠:①16:30~18:00 ②18:30~20:00 ③20:30~22:00 ④翌7:00~8:30 ⑤翌9:00~10:30

[数量]

最小購入数:1、最大購入数:5

[注文受付締切]

チェックイン日の0日前の19時まで

[キャンセルについて]

キャンセル受付締切はチェックイン日の0日前の19時まで

この日時を過ぎると、キャンセル料として100%の料金が発生します。

締切前であれば、キャンセルは可能で、料金は発生しません。

焚き火台 レンタル

3,500円/泊

各種焚き火台 レンタルを行っております。薪付きです。
基本の焚き火台の価格で設定しておりますので、メニュー表画像にある焚き火台の大と小をご希望の場合は別途、メッセージにてお知らせ頂ければ幸いです。

[注文受付締切]

チェックイン日の0日前の20時まで

[キャンセルについて]

キャンセル受付締切はチェックイン日の0日前の20時まで

この日時を過ぎると、キャンセル料として100%の料金が発生します。

締切前であれば、キャンセルは可能で、料金は発生しません。

空室状況

日付・人数指定

{{ dispCheckIn }}
{{ dispCheckInDw }}
{{ dispCheckOut }}
{{ dispCheckOutDw }}
大人{{ condition.adult }}名 子供{{ condition.child }}名 幼児{{ condition.infant }}名

キャンセルポリシー

  • 14日前の0時より前
    キャンセル料無料
  • 14日前の0時以降
    宿泊料金の30%
  • 7日前の0時以降
    宿泊料金の50%
  • 1日前の0時以降
    宿泊料金の100%

禁止事項と注意事項

◇ワンちゃんも宿泊可能のお部屋となります。
体重10kg未満又は体高が40cm未満の小型犬までを目安とさせていただきます。
上記の制限は必ずしも厳守ではございません。
専用庭の柵がH60cm程度な為、飛び越えてしまわないように管理頂ければ上記より大きなワンちゃんも宿泊可能です。
各ワンちゃん同伴の宿泊棟にはドッグアンカーが備え付けられておりますので、状況に応じてご利用頂ければ幸いです。
制限は設けておりませんが、ご予約ページよりお部屋や専用庭の広さをご確認の上、ご判断いただくことをお勧めいたします。
可能な範囲でお連れいただき、ご滞在をお楽しみください。
わんちゃんのお部屋をご予約の場合は「狂犬病予防接種注射済証」、「混合ワクチン予防接種証明書」をお持ちください。

*手持ち花火の利用可能
*ワンちゃん宿泊可能

決済方法

各種クレジットカード、現金支払い可
現地支払い可

18,620円
1泊の料金(税込)

同じイノセンスリゾートin千葉レゾール内の施設